Click Fraud Protection Netzero cape
STEVE’S CUSTOM HOMES,INC.
© STEVE’S CUSTOM HOMES,INC. ALL RIGHT RESERVED WORLD WIDE 2023
Design Builders of Custom Energy Efficient Green Homes
Quality & Experience For those Who Prefer It . Serving New England Since 1985
BUY AMERICAN BUILD AMERICA
BUILDING IN: ME, NH, VT, MA
CERTIFIED SOLAR POWER PROVIDERS

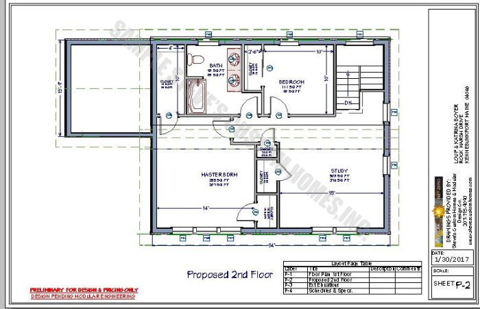
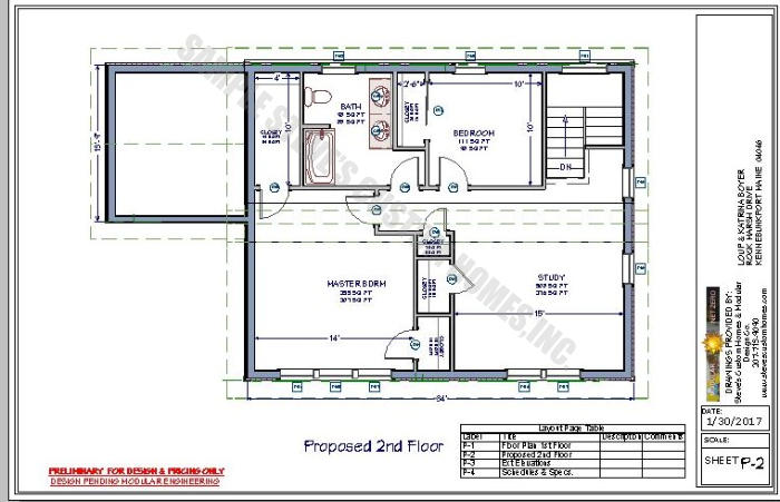
Custom Net-Zero Cape 3 Bedroom

2 ½ Bath

THIS HOUSE DESIGED BY STEPHEN P. ADAMCZYK
STEVE’S CUSTOM HOMES,INC.
© STEVE’S CUSTOM HOMES,INC. ALL RIGHT RESERVED WORLD WIDE 2024
BUY AMERICAN BUILD AMERICA

Custom Net-Zero Cape 3 Bedroom 2 ½ Bath

STEVE’S CUSTOM HOMES,INC.
Quality & Experience For those Who Prefer It . Serving New England Since 1985
BUY AMERICAN BUILD AMERICA

Custom Net-Zero Cape 3 Bedroom 2 ½ Bath